Tyribo burettslag: Ungdommar blei bustadeigarar med startlån
I mai 2023 flytta seks unge med utviklingshemming inn i sine eigne leilegheiter i det nybygde Tyribo burettslag i Risør. Leilegheitene vart finansiert med startlån frå kommunen, og prosjektet vart realisert trass høge byggekostnader gjennom god prosjektstyring.
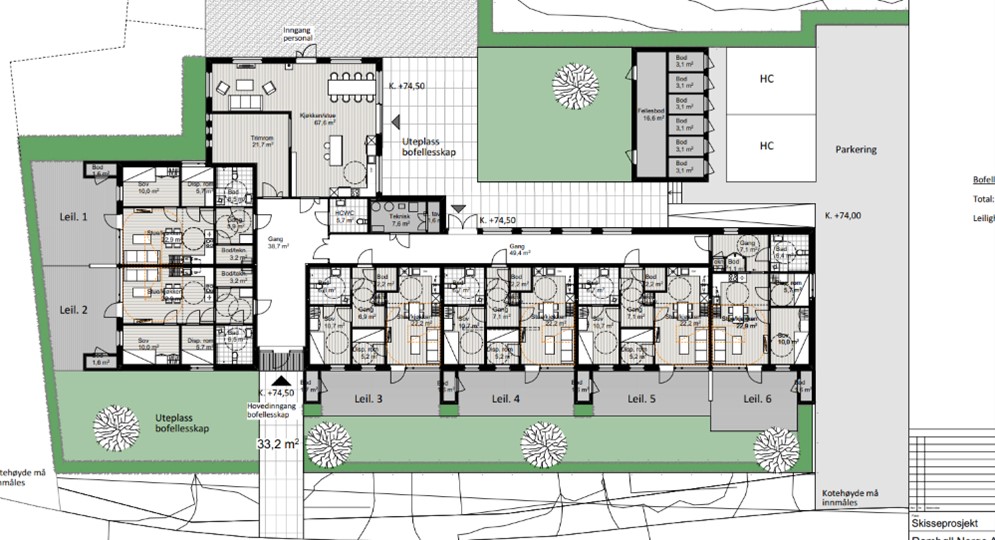
Resultat
- Seks unge menneske mellom 17 og 25 år med utviklingshemming har kjøpt sine eigne leilegheiter. Dei bestemmer sjølve over leilegheita, og kan bu i ho så lenge dei vil.
- Kvar leilegheit er om lag 58 kvadratmeter og har eigen inngang, open stove-kjøkkenløysing med moglegheit for hems, to soverom, bad, eigen terrasse og to buer.
- Felles stove og kjøkken med sitteplass til tolv, trimrom, fellesbuer og eit 200 kvadratmeter stort skjerma uteområde som bebuarane eig saman.
- Burettslaget er bygd som passivhus med bergvarme, energibrønnar til varmtvannsbereder og vassboren varme i heile bygget.
- Kvar leilegheit har sitt eige ventilasjonsanlegg som bebuarane kan tilpasse etter individuelle behov.
Bakgrunn
Kommunen kjende godt til ungdommane frå dei var barn, og visste at dei hadde ansvar for å gi dei ein god stad å bu når dei blei eldre. Ungdommane kjende kvarandre også godt frå før, blant anna frå grunnskulen. Kommunen var usikker på om dei ville sette i gang eit slikt prosjekt på grunn av kostnadene til både bygget og drifta. Eit solid forprosjekt utan raude tal og tilskot frå Husbanken var ein føresetnad.
Mål og målgruppe
Målet var å sørge for at desse unge med utviklingshemming sjølv kunne bestemme korleis dei ville bu, på lik linje med andre innbyggarar i Risør.
Beskriving av prosessen
Kommunalsjefen for helse og omsorg tok initiativet i 2017. Då var den yngste elleve år og den eldste 19 år og klare for å planlegge sin eigen busituasjon. Den aktive foreldregruppa og kommunen dreiv prosjektet vidare i fellesskap og samarbeidde godt fram til innflytting i 2023.
Tomta er sentralt plassert i eit ordinært bustadfelt med kort veg til kollektivtransport, butikk, skule, fritidstilbod og Risør sentrum. Kommunen måtte rive dei gamle og utdaterte kommunale bustadene frå 60-talet som stod der frå før, og planere tomta etterpå. Også naboane såg fram til å få «forskjønna» byggefeltet med nye bustader og nye naboar.
Risør kommune var byggherre og stilte med gratis tomt og sin eigen prosjektleiar. Dei inngjekk òg ein bindande fastprisavtale med foreldra til dei kommande bebuarane på to millionar kroner per leilegheit. Dersom det hadde blitt dyrare, ville kommunen dekt mellomlegget.
Frå saka blei avgjort i kommunestyret i 2022 og til innflytting, gjekk det eitt år og åtte månader. Før det hadde prosjektgruppa brukt lang tid på å planlegge og finne funksjonelle og estetiske løysingar som var i samsvar med økonomi, Husbanken sine kriterium og ønska til bebuarane.
– Vi var ei gruppe på fire frå kommunen (prosjektleiar, personale, helse og reinhald) som møttest kvar 14. dag saman med dei føresette og med arkitektar ein gong i månaden. I tillegg var det ei referansegruppe med representantar frå dei tilsette, livslaupsutvalet og rådet for personar med funksjonsnedsettingar. Det gode samarbeidet i desse gruppene førte til at vi kunne legge fram eit gjennomtenkt forprosjekt for politikarane. Dermed slapp vi forseinkingar, kostnadsaukar, fram og tilbake, både i prosessen og fram mot kommunal avgjerd og under bygging, forklarer prosjektingeniør Tom Thorvaldsen i Risør kommune.
For å halde felleskostnadene nede, valde kommunen å legge inn kvalitetar som blant anna energibrønnar til grunnvarme, ytterkledning i malmfuru med jernvitrol og 80 cm høg grunnmur med murstein for å hindre fukt på kledninga frå bakken. Desse kvalitetane har ført til at bygget ikkje treng utvendig vedlikehald på 40–50 år. I tillegg bygde dei inn ein svalgang mellom leilegheitene og bakgarden, slik at bebuarane kan besøke kvarandre utan å ta på sko eller berre gå rett ut.
I det daglege hjelper kommunen bebuarane frå ein eksisterande personalbase i nabobygget berre åtte meter frå personalinngangen.
– Dette var vi forplikta til å gjere, og det er fullt mogleg å gjennomføre økonomisk. Bebuarane klarer fint å betene eit startlån på to millionar, så lenge felleskostnadene er låge over lang tid. Med ledig tomt og den gunstige finansieringspakka frå Husbanken, var det vanskeleg å la vere å bygge. Kommunen kom veldig godt ut av dette, seier Thorvaldsen.
Brukarmedverknad
Ungdommane har sjølve påverka utforming og løysingar saman med sine føresette. For eksempel fekk dei velje fargar, golvbelegg og kjøkkentype ut frå tre alternativ som låg innanfor budsjettet. Foreldregruppa var sentral gjennom heile prosessen og utgjer styret i burettslaget i dag. Saman med bebuarane bestemmer dei husreglar, vedtekter, felleskostnader og vedlikehald. Dersom ein skulle flytte ut, har kommunen forkjøpsrett til avtalt pris, men burettslaget kan vere med å bestemme kven som skal flytte inn.
Finansiering
Dei totale prosjektkostnadene var på 23,8 millionar kroner. Det inkluderte 1,2 millionar for å rive dei gamle bustadene, å planere tomta flat og opparbeide fellesområdet utvendig. Kommunen var byggherre og fekk 9,5 millionar kroner i investeringstilskot frå Husbanken pluss momskompensasjon. Denne gunstige støtteordninga saman med god prosjektstyring med fastpris frå alle leverandørane, og at kommunen slapp å bygge ny personalbase, gjorde at dei til slutt kunne selje kvar leilegheit for to millionar kroner.
Til sjuande og sist sat kommunen igjen med eit overskot på 312 000 kroner. Dette beløpet blei sett av til diverse reparasjonar og endringar som ofte dukkar opp etter ferdigstilling, så i praksis gjekk kommunen i null.
Alle bebuarane har fått startlån av kommunen til å dekke heile eller delar av kjøpesummen. Kommunen trong verken å bruke etableringstilskot eller kommunal bustøtte for å komme i mål økonomisk.
Etter nesten eitt års drift har bygget vore sjølvforsynt på energi. Energibrønnane, god isolering og vedlikehaldsfrie løysingar har lagt grunnlaget for låge og stabile felleskostnader. Energiutgiftene for kvar bustad inkludert fellesområde er berekna til cirka 500 kroner i månaden. Kvar bebuar betaler 4700 kroner i felleskostnader per månad, inkludert 765 kroner i sparing til uventa ting.
Sjå reknestykke på kva ein ung ufør kan få i startlån
Utfordringar undervegs
- Den første utfordringa var om kommunen kunne bruke ein eksisterande døgnbemanna personalbase eller om dei måtte bygge og drifte ein ny. Løysinga med å rive og bygge nye bustader ved sida av ein eksisterande base var viktig for å halde kostnadene nede.
- Den andre handla om dei fekk lov til å rive dei gamle kommunale bustadene i staden for å bygge dei om. Alt i alt blei det dyrare å bygge om. Årsakene var blant anna at dei eksisterande bygga ikkje eigna seg i praksis, og at det ville blitt høgare felleskostnader med energibruk og vedlikehald enn å rive og bygge nytt.
Tips til andre
- Start tidleg og involver dei føresette, Husbanken og alle relevante personar og fag frå starten av, for å avklare ønske og krav.
- Bruk eigen prosjektleiar, så kunnskapen blir i kommunen, og planlegg alt på førehand med faste prisar.
- Berekn god tid til prosjektering og anbod, eventuell regulering og byggesøknad.
- Få fullfinansiert byggeprosjektet via kommunen. Tilskot frå Husbanken og momskompensasjon blir ikkje utbetalt før bygget er ferdig.
- Skriv ein kontrakt med entreprenør som har fastpris med endringsmeldingar på tilleggsarbeid.
Lenker
Rettleiing til bustader til personar med utviklingshemming
Personar med nedsett funksjonsevne skal kunne bu like godt som andre